Cod articol

EV-42920334

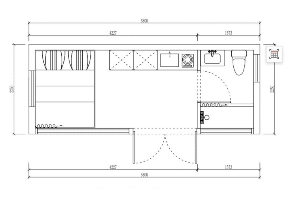
STELLAR 5,8 m

Mărime:

L 5800mm * W 2250mm * H 2450mm

Suprafața construită:

13.05 m2

Consum total de energie:

Max 3 kw

Greutate netă totală:

2 tones

Opțiuni incluse:

Lumină LED , Boiler electric de 50L (SAKURA) , Baie (Chiuvetă, Dulap, Cap de duș, Toaletă, Ușă, Ventilator de evacuare, Perdea de duș, Încălzitor de apă)

Opțiuni suplimentare

Selectați din lista de mai jos pentru a adăuga opțiuni suplimentare comenzii Dvs. Prețul va fi calculat automat în funcție de opțiunile selectate.

  • + Bucătărie (Dulap, Dulap suspendat, Chiuvetă, Plită cu inducție, Hotă)
  • + Unitate A/C

Cabina și Designul Interiorului

  1. Cadru principal: Structură de bază solidă pentru susținerea întregii cabine.
  2. Carcasă: Construcție durabilă, concepută pentru a rezista uzurii și condițiilor externe.
  3. Tratament suprafață carcasă (pulverizare electrostatică): Proces de finisare care asigură un strat protector împotriva factorilor de mediu.
  4. Izolație termică și strat impermeabil: Protecție avansată pentru menținerea unei temperaturi confortabile și prevenirea infiltrării apei.
  5. Perete cortină din sticlă: Design modern și estetic, cu fațade din sticlă ce permit o iluminare naturală optimă.
  6. Fereastră deschisă / Fereastră cu plasă: Fereastră practică ce permite ventilația și protejează împotriva insectelor.
  7. Ușă de intrare: Ușă solidă, prevăzută cu mecanisme de siguranță.
  8. Lacăt de intrare: Mecanism de securitate pentru protecția cabinei.
  9. Fâșie de lumină exterioară: Lumină ambientală pentru iluminarea exteriorului cabinelor.
  10. Lampa de tavan: Iluminare eficientă pentru interiorul cabinei.
  11. Tavan: Suprafață elegantă și funcțională, realizată din materiale durabile.
  12. Suport pentru picioare: Elemente de susținere pentru confortul utilizatorilor.
  13. Inele de suspendare / Fixări pentru transport / Conectori: Componente necesare pentru montajul și transportul cabinei.
  14. Perete: Structură robustă pentru compartimentarea și stabilitatea cabinei.
  15. Pardoseală: Design rezistent și confortabil pentru podea.
  16. Breaker de aer: Sistem pentru controlul ventilației și al calității aerului.


Apă și Electricitate

  1. Cabluri pentru întreaga cabină: Instalare standardizatǎ pentru toate cablurile electrice.
  2. Conductă de izolație PVC: Țeavă standard din PVC pentru instalarea conductelor electrice.
  3. Sistem de alimentare cu apă și drenaj anti-explozie și anti-presiune: Sistem fiabil și sigur de alimentare cu apă și drenaj.
  4. Priză cu cinci orificii / priză cu trei orificii: Priză de alimentare standard pentru diferite tipuri de echipamente.
  5. Panou de comutator / panou USB: Configurare standard de comutatoare și porturi USB pentru utilizare convenabilă.

Preț

de la 14500 €

Cabina și Designul Interiorului

  1. Cadru principal: Structură de bază solidă pentru susținerea întregii cabine.
  2. Carcasă: Construcție durabilă, concepută pentru a rezista uzurii și condițiilor externe.
  3. Tratament suprafață carcasă (pulverizare electrostatică): Proces de finisare care asigură un strat protector împotriva factorilor de mediu.
  4. Izolație termică și strat impermeabil: Protecție avansată pentru menținerea unei temperaturi confortabile și prevenirea infiltrării apei.
  5. Perete cortină din sticlă: Design modern și estetic, cu fațade din sticlă ce permit o iluminare naturală optimă.
  6. Fereastră deschisă / Fereastră cu plasă: Fereastră practică ce permite ventilația și protejează împotriva insectelor.
  7. Ușă de intrare: Ușă solidă, prevăzută cu mecanisme de siguranță.
  8. Lacăt de intrare: Mecanism de securitate pentru protecția cabinei.
  9. Fâșie de lumină exterioară: Lumină ambientală pentru iluminarea exteriorului cabinelor.
  10. Lampa de tavan: Iluminare eficientă pentru interiorul cabinei.
  11. Tavan: Suprafață elegantă și funcțională, realizată din materiale durabile.
  12. Suport pentru picioare: Elemente de susținere pentru confortul utilizatorilor.
  13. Inele de suspendare / Fixări pentru transport / Conectori: Componente necesare pentru montajul și transportul cabinei.
  14. Perete: Structură robustă pentru compartimentarea și stabilitatea cabinei.
  15. Pardoseală: Design rezistent și confortabil pentru podea.
  16. Breaker de aer: Sistem pentru controlul ventilației și al calității aerului.


Apă și Electricitate

  1. Cabluri pentru întreaga cabină: Instalare standardizatǎ pentru toate cablurile electrice.
  2. Conductă de izolație PVC: Țeavă standard din PVC pentru instalarea conductelor electrice.
  3. Sistem de alimentare cu apă și drenaj anti-explozie și anti-presiune: Sistem fiabil și sigur de alimentare cu apă și drenaj.
  4. Priză cu cinci orificii / priză cu trei orificii: Priză de alimentare standard pentru diferite tipuri de echipamente.
  5. Panou de comutator / panou USB: Configurare standard de comutatoare și porturi USB pentru utilizare convenabilă.

Cum funcționează (Proces pas cu pas)

Cum să comandați o casă capsulă HansenCapHauS

1. Alegerea modelului și a configurației

Alegeți modelul potrivit de casă capsulă și opțiunile suplimentare pe site-ul nostru sau în showroom.
 📅 Doriți să vedeți casa în realitate? — Programați o vizită.

2. Plasarea comenzii

După aprobarea planului și a configurației, se încheie contractul.
 Primiți oferta comercială și factura pentru plată.

💳 Condiții de plată:

  • 60% — avans la semnarea contractului
  • 20% — după finalizarea asamblării casei în unitatea noastră de producție și pregătirea pentru expediere
  • 20% — după instalarea casei pe teren, conectarea tuturor utilităților convenite și semnarea procesului-verbal de predare-primire

3. Producție și livrare

Casa este realizată individual, conform comenzii dumneavoastră.
 ⏱ Termen de producție și livrare: până la 70 de zile.

4. Montaj și instalare (serviciu opțional)

Specialiștii noștri asigură:

  • pregătirea fundației,
  • racordarea la apă, electricitate și canalizare,
  • montajul și conectarea casei pe teren.

Toate lucrările sunt adaptate particularităților fiecărui teren.
 🧱 Proiectul este însoțit de un arhitect cu experiență, de la început până la finalizarea montajului.


Primiți o casă complet pregătită pentru locuire.
 Doar vă mutați și începeți să locuiți.